WASHINGTON, DC – Foulger-Pratt, and JV partners Juster Properties and Clear Rock Properties, have submitted plans with the DC Zoning Commission to redevelop the 301-331 N Street, NE site. Located south of Florida Avenue on N Street between 3rd and 4th Streets, the site bridges the gap between Union Market and the NOMA district. Further, the site is adjacent to the NOMA/Gallaudet Metro Station, which is projected have one of the highest increases in ridership in the coming years.
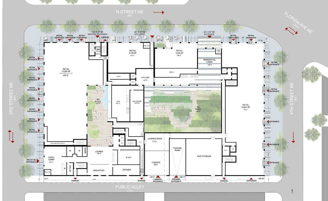
At completion, the overall project will consist of four integrated buildings totaling 462,500 gross square feet that includes 367 apartment units, 26,500 square feet of retail, 25,400 square feet of creative office and a 165-room boutique hotel.
The current 1.5 acre site at 301 N Street, NE, is home to a 1931 industrial building that was once a printing factory for the National Capital Press, which presently operates as a three-story self-storage facility. The historic brick structure represents the unique and former industrial past of the neighborhood, and will be designated a historic landmark, rehabilitated, and converted into ground-floor retail with creative office above.
At the adjacent 331 N Street, NE, at the eastern corner of 4th and N Streets, the architect, Brooklyn-based AA Studio, has designed an 11-story, U-shaped residential tower with 273 apartment units and ground-floor retail. The building will share a lobby with a 94-unit residential building fronting N Street, NE that houses additional retail. Other building amenities include a rooftop deck, pool, terraces, fitness facility, and two outdoor plazas.
At the Southwest corner of the site, Foulger-Pratt proposes a 175-room boutique hotel. Also included are 250 spaces of underground parking under the residential buildings and 230 bicycle parking spaces.
The 301-331 N Street site is located at the epicenter of several successful, high-density, amenity-rich neighborhoods, including Union Market, NOMA, Shaw, and the H Street corridor. The area is further bolstered with cohesive retail options, such as the flagship REI store located at the nearby Uline Arena development. These established districts have proven to be some of the strongest new retail centers, which will serve as an attractive amenity base for the 301-331 N Street project. At completion, the site will sit among neighboring developments that will offer a critical mass of over 200,000 SF of retail at build-out, creating a vibrant street environment. The application states, “The Project will create a truly transit-oriented urban mixed-used community that will add new housing, retail, offices, and a hotel to an exciting and transforming neighborhood.”
About Foulger-Pratt:
Established in 1963, Foulger-Pratt is a real estate development firm distinguished by its long-term investment focus and extensive experience executing successful mixed-use, transit-oriented projects throughout the Washington DC metro area. The firm’s intimate knowledge of virtually every submarket in this robust and stable regional economy has enabled it to develop more than 13.7 million square feet of commercial office, retail space, and multifamily residential projects. From acquisition to development, construction to asset management, the company’s fully integrated teams create value at all stages of an investment’s lifecycle.
Foulger-Pratt is privately owned, led, and staffed by many of the industry’s most talented professionals.
The firm’s culture has been carefully cultivated for the last half-century through deliberate effort to operate consistently in accordance with specific Core Values. The result is a reputation of unmatched integrity, accountability and vision. For more information, visit: www.foulgerpratt.com.
###



